Ce bateau est à vendre
Houseboat: catamaran solaire
Insubmersible
2 moteurs electriques
100% autonome
categorie D
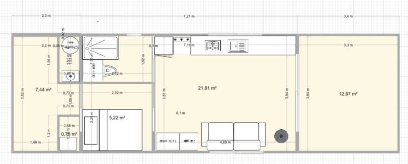
surface : 52 m2
longueur 12,90
largeur : 4,05
tirant d’eau: 0,50
1 séjour/ cuisine avec canapé convertible
1 chambre avec lit double
1 salle d’eau
1 grande terrasse avant
1 terrasse arrière
2 grands placards technique à l’arrière
- 1 pour la gestion électrique
- 1 pour la gestion de l’eau

Ce catamaran offre une expérience de navigation et de vie en totale autonomie.
Propulsé par 2 moteurs électriques pour une grande maniabilité
Le toit est équipé de 16 panneaux solaires de 400 watts, puissance totale de 6 400 watts.
Cette production permet de propulsé deux moteurs électriques. Et de rendre le bateau complètement autonome
Vous voguerez silencieusement sur le canal, au plus près de la faune, que vous pourrez observer dans le calme et la sérénité.
Le salon baigne dans la lumière naturelle grâce à une grande baie vitrée et deux larges fenêtres, vous offrant une vue imprenable sur les paysages qui défilent.
À l’avant, une terrasse ombragée vous invite à une véritable parenthèse de détente.
Au rythme paisible de l’eau, savourez pleinement vos apéritifs et repas en plein air.
Laissez-vous bercer par le calme environnant, confortablement installé sur un transat pour une sieste tout en douceur.
À bord, le confort est au rendez-vous grâce à une isolation optimale assurée par 10 cm de mousse polyuréthane à cellules fermées, hydrophobe.
Côté cuisine, une plaque à induction et un four multifonctions sont à votre disposition pour cuisiner en toute simplicité.
Plan de pont et structure


Les flotteurs insubmersible
Les flotteurs sont fabriques à partir de PE vierge et en standard remplis d’EPS insubmersible
✓ Matériau : PE de 9 mm (polyéthylène) haute qualité
✓ Remplissage à l'intérieur : 19 kg/m2EPS (polystyrène)
✓ Prêt pour l'hiver : Float maintient sa forme et est résistant à la mécanique
Déformations, y compris la pression de glace
✓ Le flotteur ne coulera pas en cas de trou
- Les péniches sur nos flotteurs sont certifiées pour la catégorie
- Résistant de -40° à + 60°C
- Résitant aux UV
2 flotteurs. W800 avant 425 L X 2 = 850 litres
16 flotteurs W800 Millieu. 650 L x 16. = 10400 Litres
2 flotteurs W800 Arrière. 790 L X 2 = 1580 Litres
Total volume des flotteurs. : 11 830 Litres




Isolation en mousse de polyuréthane à cellules fermées ( étanche à l’eau)
La mousse PUR à cellules fermées est composée de cellules indépendantes et scellées. Appliquée sur une surface saine, cette composition hermétique empêche l’air et l’eau de pénétrer. Ces cellules emprisonnent donc des gaz qui contribuent à une isolation thermique supérieure.
10 cm de mousse projetée sur sol, murs et plafond pour une excellente isolation thermique
La production electrique


MultiPlus-II 48/ 3000/ 35-32 230V


LiFePO4 battery 25,6V/ 200Ah Smart-a

Le réseau 220 volts :
Tableau electrique
2 disjoncteur différentiel
1 disjoncteur plaque induction
1 disjoncteur réfrigérateur
1 plaque a induction
1 disjoncteur pompe eau
1 disjoncteur balle au eau chaude
1 disjoncteur lampe UV
1 disjoncteur prises tribord
1 disjoncteur prises bâbord
Séjour
2 x 3 prises sur plan de travail
1 Prise près entrée tribord
1 prise dans placard frigo
1 prise dans placard micro-ondes
3 prises dans petits placard tribord
3 prises dans placard penderie
Chambre
2 prises cote lit
1 prise au sol
Terrasse avant
1 prise
Terrasse arrière
2 prises
Éclairage
1 BandeauLed chambre
2 Bandeaux Led séjour
1 Bandeau Led SDB
2 spots terrasse avant
2 spots terrasse arrière
Gestion de l’eau

Autonomie en eau : une pompe avec un photophore aspire l’eau qui va passer par des filtres dont un au charbon actif avant et traverser une lampe UV qui finira de détruire virus et bactéries
Les moteurs électriques
La technologie RIM de Hy.G motors concentre toute la puissance d’un moteur à haut rendement dans sa capacité de poussée exceptionnelle.
Découvrez comment l’équipe de Hy.G motors, par son approche technique, sobre, performante et efficace, a repensé la fonction même de propulsion nautique pour aboutir à un objet unique, épuré, d’une performance supérieure : le RIM.
UN CONCENTRÉ DE TECHNOLOGIE
ET D'INNOVATIONS HYDRODYNAMIQUES

Écologique dans son ADN, réellement silencieux, 1ᵉʳ modèle de Hy.G motors entièrement conçu et fabriqué en France, le RIM6 est un concentré de puissance propulsive pour déplacer tout type de navires jusqu’à 4,5 tonnes par propulseur.
Servitude, locatif, plaisance motorisée, voile, ou bateaux de charges, le RIM6 emmène tout type de coque à jusqu’à 7 noeuds. Son record actuel : une péniche de 10 tonnes avec un unique RIM6 faisant office de propulseur de secours. Les facultés du RIM6 sont dé-multipliables : installez-en 1, 2 3 ou 4 pour accroître votre capacité d’emport.
Ces performances ne sont possibles uniquement parce que le RIM6 intègre le meilleur de la technologie Hy.G motors.
L’habitation
Le séjour / cuisine

Une grande pièce très lumineuse, pour contempler les paysages qui défilent sous vos yeux
La chambre


Avec une belle porte fenêtre vitrée une grande tablette pour poser et recharger téléphones et tablettes’ prise usb A et C
La salle d’eau : douche et Wc


Eclairage
L’interrupteur, c’est votre voix
C’est à la voix que vous pourrez allumer, éteindre, changer l’intensité, la couleur
Sur le bateau vous avez 5 zones
1 - Le sejour
2 - La chambre
3 - La salle d’eau
4 - La terrasse avant
5 - La terrasse arrière
il suffit de dire à Siri :
• « Siri, allume toutes les lumières. »
. « Siri, allume le séjour (ou de la chambre ou de SDB ). »
• « Siri, éteins (ou allume ) toutes les lumières. »
• « Siri, tamise la chambre à 30 %. »
• « Siri, salle de bain à 50% et en jaune. »
• « Siri, éteins toutes les lumières. »
• « Siri, baisse la lumière dans la chambre »
• « Siri, allume la terrasse avant »
. « Siri, allume la chambre »
• « Siri, allume la salle de bain »
• « Siri, tamise la chambre à 30 % en vert. »
• « Siri, allume salle de bain lumière blanche »
•
Contactez-nous
Pour toute information, n'hésitez pas à nous contacter via le formulaire ci-dessous. Nous serons ravis de vous répondre